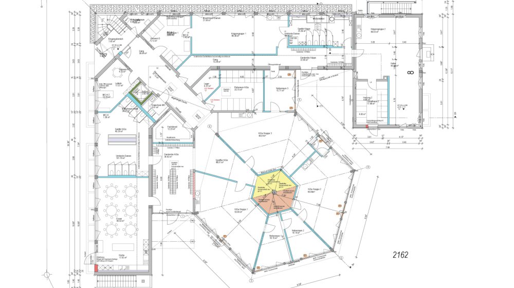
Umbau Kindertagesstätte Haidaer Straße

Umbau und Umnutzung eines ehemaligen Verwaltungsgebäudes in eineKindertagesstätte für 101 Kinder (3 Gruppen U6 und 2 Gruppen U3 Betreuung)

Bauherr: Stadt Waldkraiburg

Umbau und Umnutzung eines ehemaligen Verwaltungsgebäudes
in eine Kindertagesstätte. Die Baumaßnahme ist Teil des Projekts zur Schaffung von 8 Gruppen U3 und 3 Gruppen U6 Kinderbetreuung
Leistungsphasen 1-9 Objektplanung